Disponible en venta o alquiler este local comercial en pleno centro de Cangas, con mucha visibilidad y en una zona comercial rodeado de otros negocios en pleno funcionamiento. Próximo a todos los servicios básicos.
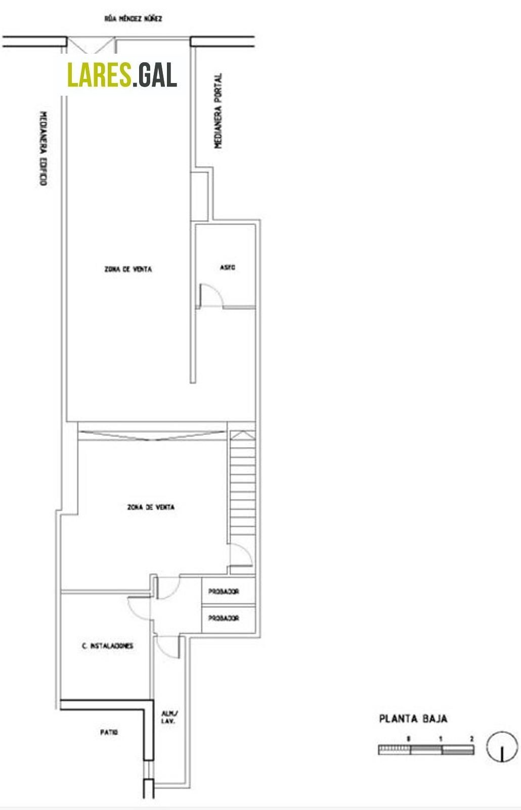
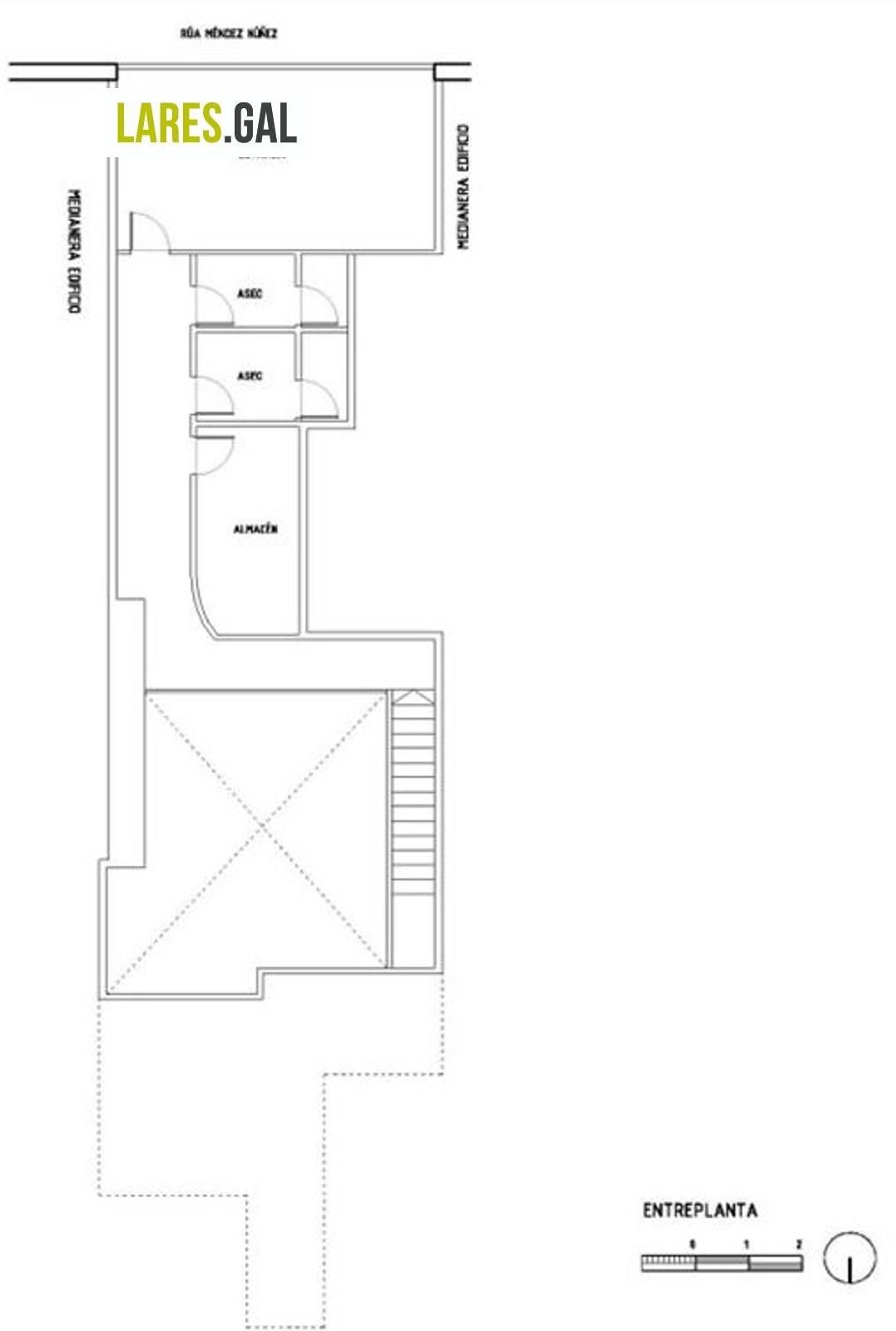
De aproximadamente 174 m2 de superficie, se distribuye en dos plantas (de 95m² la planta baja y 62 m2 el entresuelo), con amplio escaparate y un aseo en cada planta. La planta baja se encuentra acondicionada, sin embargo el entresuelo necesita acondicionamiento.
Acceso al interior del local en planta baja mediante rampa, lo que garantiza accesibilidad. El acceso a la entreplanta es por escaleras interiores.
En activo hasta hace poco tiempo, lo que garantiza su gran potencial comercial. La última actividad fue como comercio de ropa y complementos pero se presenta como una excelente oportunidad para otros tipos de negocio.
El inquilino debe hacerse cargo de los recibos de luz, agua y basura. Al precio hay que añadirle el IVA y deducirle la retención en IRPF que corresponda en cada momento.
Para el alquiler, la fianza es la exigida por ley para locales comerciales: 2 mensualidades. Se exigen garantías de solvencia para la formalización del contrato.
En Lares no cobramos honorarios a la parte compradora ni a la parte inquilina.
Los importes publicados no incluyen impuestos ni los gastos de compraventa o alquiler que correspondan en cada caso.
La información de este anuncio es informativa y no contractual. Puede contener errores, cambios de precio o ser retirada sin previo aviso.
Mapa de situación
La dirección del inmueble es aproximada.
Su entorno